Wohnhaus mit Hofladen


Leistung: Planung LP nach SIA108 1-4, künstlerische Oberbauleitung

zusammen mit Hanna Gervasi, Winterthur


Bauherrschaft: Privat


Fertigstellung: 2015


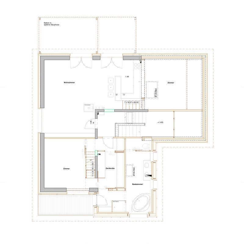
Zu dem Bauernhof im Dorfzentrum Pfeffingens gehört ein Wohngebäude, das im Jahre 1968 gebaut wurde. Für dieses Haus sind vor allem der Einsatz von Splitleveln und die versetzte Anordnung der Fenster charakteristisch. Um im Erdgeschoss Platz für einen Hofladen, eine gemeinschaftliche Küche und Gästeräumlichkeiten zu erhalten, sollte eine eigenständige Wohnung im Obergeschoss entstehen, die Bäder ausgebaut und das Haus um ein Splitlevel erweitert werden. Der private und der öffentliche Zugang zum Haus wurden beibehalten. Für das Projekt wurden in Zusammenarbeit mit dem Bauingenieur Möglichkeiten gesucht, wie Aushub, Abbrucharbeiten und Innenausbau bestmöglich als Eigenleistung erbracht werden können. Die Wohnung im Obergeschoss entstand in enger Zusammenarbeit mit der Bauherrschaft. Das komplexe Umbauprojekt entschied sich zuletzt an den vielen Details der Materialübergänge und dem Anschluss von Neubau an die Bestandsstruktur. Eine Herausforderung lag in der Gestaltung der Fassade des Anbaus, um das neue Volumen als zugehörige Einheit wirken zu lassen.